ŞANLIURFA · TÜRKİYE GENELİ · ÇELİK YAPI SİSTEMLERİ

Hayalinizdeki Evi
Anahtar Teslim
Ediyoruz.

Subasmandan boyaya, mutfaktan peyzaja — hafif çelik yapı, bungalov, tiny house ve ağır çelik yapı sistemlerinde eksiksiz anahtar teslim hizmet.

✓ Anahtar Teslim
✓ Hızlı Montaj
✓ Garantili Üretim

Ne İnşa Ediyoruz?

Tüm yapı tiplerimiz sertifikalı çelik konstrüksiyon sistemiyle üretilir.

Hafif Çelik Yapı
🏗️

Hafif Çelik Yapı

Geleneksel inşaata göre 3× hızlı, depreme dayanıklı, her metrekarede özelleştirilebilir çelik hafif çelik yapılar.

Detayları Gör →
Bungalov
🌲

Bungalov

Doğayla iç içe, ahşap görünümlü dış cephe seçenekleriyle tatil köyü, apart otel veya bireysel yaşam alanları.

Detayları Gör →
Tiny House
🏡

Tiny House

Az yer, çok yaşam. Akıllı iç tasarımıyla kompakt ama eksiksiz; bahçe, çatı katı veya arsa üzeri kurulum.

Detayları Gör →
Ağır Çelik Yapı
📦

Ağır Çelik Yapı

Taşınabilir, sağlam, hızlı kurulum. Ofis, depo, yaşam alanı veya ticari kullanım için ağır çelik yapı çözümler.

Detayları Gör →
0+

Tamamlanan Proje

0+

Yıllık Deneyim

0

Türkiye Geneli Hizmet

0%

Anahtar Teslim Memnuniyet

Anahtar Teslim Hizmet Kapsamı

Arsanızı getirin, içinde yaşanabilir evinizi teslim edelim.

Özaydın Çelik Yapı olarak projenizin her adımını biz yönetiyoruz. Zemin etüdünden başlayarak iç dekorasyona, peyzajdan güvenlik sistemine kadar tek muhatap anlayışıyla çalışıyoruz.

Tek Muhatap, Sıfır Stres
Temel'den çatıya, mutfaktan peyzaja tüm işler bizde.
Çelik Konstrüksiyon
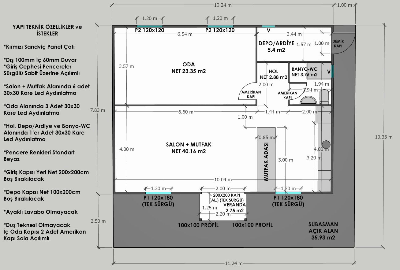
  • Subasman & Radye Temel
  • Çelik Konstrüksiyon & Çatı Makas/Kaplama
  • Dış Cephe Kaplaması & Mantolama
  • Alçı/Alçıpan & Asmatavan & Gizli Aydınlatma
  • Laminant Parke & Seramik
  • Boya-Sıva
  • PVC Kapı & Pencere
  • Cam Balkon
  • Çelik Kapı & İç Kapı
  • Mutfak Dolabı, Tezgah & Evye
  • Fiberglas Hazır Havuz
  • Güvenlik Kamerası & Alarm Sistemi
  • Bahçe & Peyzaj Düzenlemesi

Örnek Projelerimiz

Anahtar teslim tamamladığımız işlerden öne çıkanlar.

Seri Hafif Çelik Konut Projesi
Büyüt +
Hafif Çelik

📍 Türkiye Geneli

ÖZ-210 Bungalov 134m²
Büyüt +
Bungalov

📍 134m² · 2 Katlı

Özel Tasarım Modern Çelik Yapı
Büyüt +
Özel Tasarım

📍 126m² · Cam & Çelik

Projelerimizi Yerinde Görün

Tamamlanan projelerimizi, montaj süreçlerini ve yapı detaylarını drone kamerasıyla izleyebilirsiniz.

Baştan Sona Yanınızdayız

8 adımda hayalinizden evinize.

1
🔍

Keşif & Ölçüm

Arazinize geliyoruz, ölçüm ve zemin analizi yapıyoruz.

2
📐

Proje & Sözleşme

Size özel çizim hazırlanır, fiyat netleşir, sözleşme imzalanır.

3
🏗

Temel

Arazinizde subasman veya radye temel sahada dökülür.

4
🔩

Çelik Konstrüksiyon

Çelik iskelet ve çatı sistemi doğrudan sahada kurulur.

5
🧱

Dış Cephe & Çatı

Mantolama, dış cephe kaplama ve çatı örtüsü tamamlanır.

6
🪟

Doğrama & İç İşler

Kapı, pencere, alçıpan, zemin, boya-sıva yapılır.

7
🍳

Mutfak & Tesisat

Mutfak dolabı, tezgah, evye ve tüm tesisat montajı.

8
🏡

Peyzaj & Anahtar Teslim

Bahçe düzenlemesi tamamlanır, anahtar teslim edilir.

Projenizi Konuşalım

Ücretsiz keşif ve fiyat teklifi için arayın.

Hemen Ara

0553 979 18 41

Şimdi Ara